UMDB Design Process - Spring 2025

UMass Amherst Design Build 2025

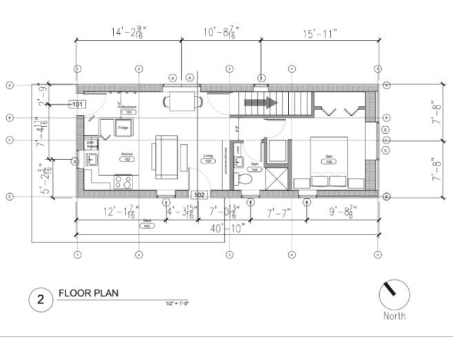
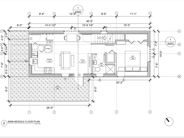
Our mission was to design and build a modular home. The main module needed to be designed to be transported over a flatbed trailer with the dimensions of 16'x40'. The home itself would be transported to Holyoke, MA, in partnership with Habitat for Humanity and Holyoke Housing Authority. The one bedroom and one bathroom design is an underserved type of home for a typical Habitat project, so we were filling a much needed hole in the local housing market.

Phase 1: Small Home Concepts

Presenting Concepts to Clients

Midway through the design process, we met the future homeowners and presented several design options in small groups. The shed roof module shown here was one proposal. Though we ultimately chose a gable roof to better match the neighborhood, the feedback we received helped shape the final design

Building Location
Street Elevation - Shed Roof Concept
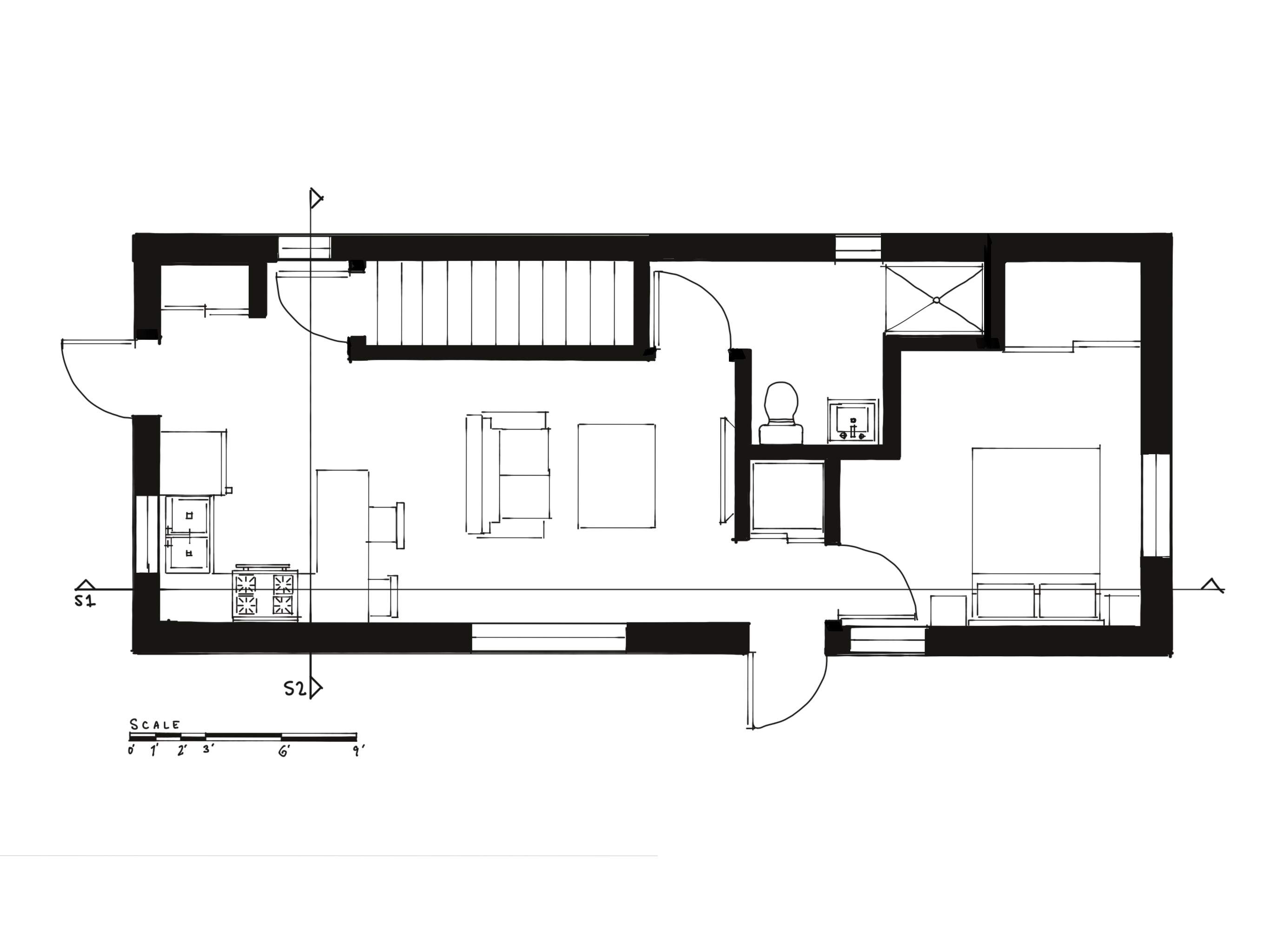
Floor Plan - Concept_01
South East Section
Layout Concept
Modular Building Diagram
Client Presentation
Laser cut concept model

Document Submittals

Throughout the design process, the design build team coordinated over the document set required. We collaborated on and accumulated over 40 drawings to submit to the Housing Authority

Interior Rendering